My Store
Western Whiskey Plan
Western Whiskey Plan
Couldn't load pickup availability
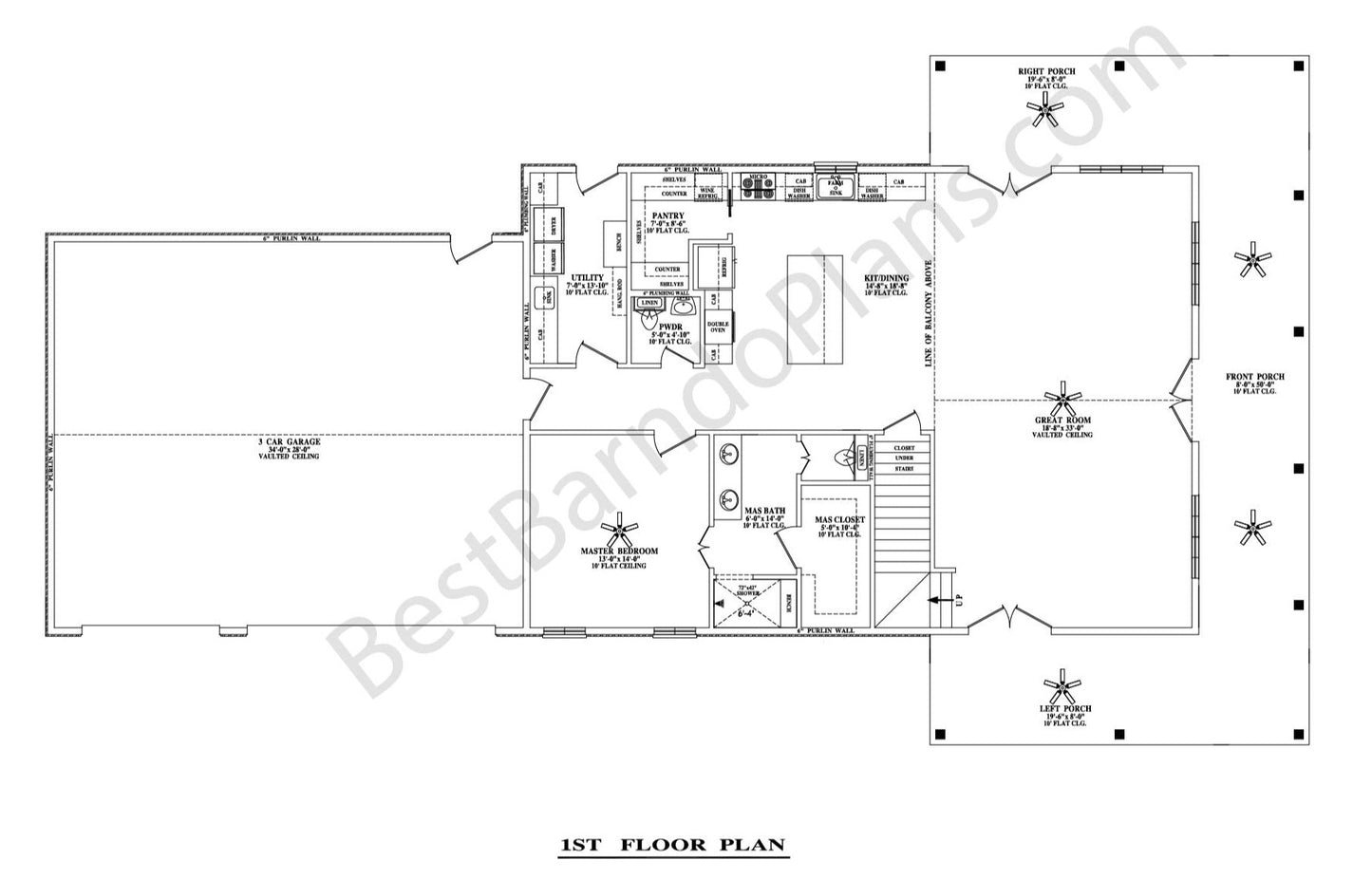
Get ready to elevate your living experience with our Western Whiskey Plan! This barndominium floor plan features 4 bedrooms and 3.5 bathrooms, perfect for families or those who love to entertain. With 2600 sf of living space, there's plenty of room to spread out and relax. Plus, the 1000 sf shop is a dream for anyone needing extra space for hobbies or storage. Upgrade to the Western Whiskey Plan today and experience the ultimate in functional and stylish living!
Upon purchase, you will receive a digital download of this full plan set in PDF format. Which includes: Floor Plan, Electrical Plan, Elevation Plan & Roof Plan
4 Bedroom
3.5 Bath
2609 SF Living
728 SF Porches
1000 SF Shop
4337 SF Total (approx. 92'x50')
Click Here to watch a TOUR Video!
Share




