1
/
of
4
My Store
Nest Plan
Nest Plan
Regular price
$1,050.00 USD
Regular price
Sale price
$1,050.00 USD
Unit price
/
per
Couldn't load pickup availability
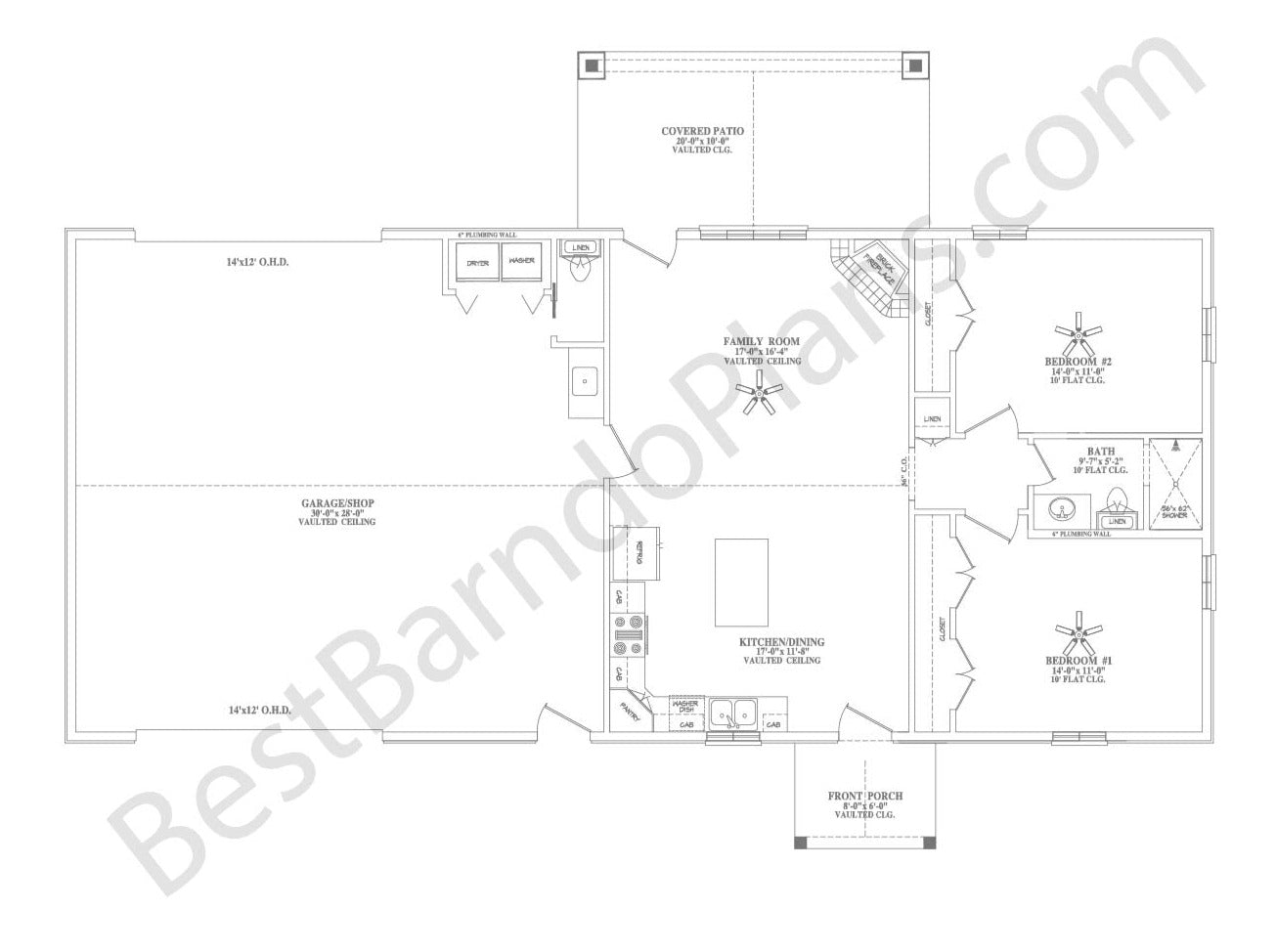
Discover The Nest, a stunning barndominium floor plan featuring 1000 square feet of living space, complemented by 250 square feet of inviting porches. With an additional 900 square feet dedicated to a spacious shop area, This barndominium floor plan offers just over 2150 square feet of versatile living and working space. Explore this unique blend of rustic charm and modern design, perfect for those seeking a distinctive and efficient lifestyle.
Upon purchase, you will receive a digital download of this full plan set in PDF format. Which includes: Floor Plan, Electrical Plan, Elevation Plan & Roof Plan
2 Bedroom
1.25 Bath
1003 SF Living
248 SF Porches
905 SF Shop
2156 SF Total (approx. 65'x45')
Click Here to watch a TOUR Video!
Share



