1
/
of
4
My Store
Lonestar Landing Plan
Lonestar Landing Plan
Regular price
$1,225.00 USD
Regular price
Sale price
$1,225.00 USD
Unit price
/
per
Couldn't load pickup availability
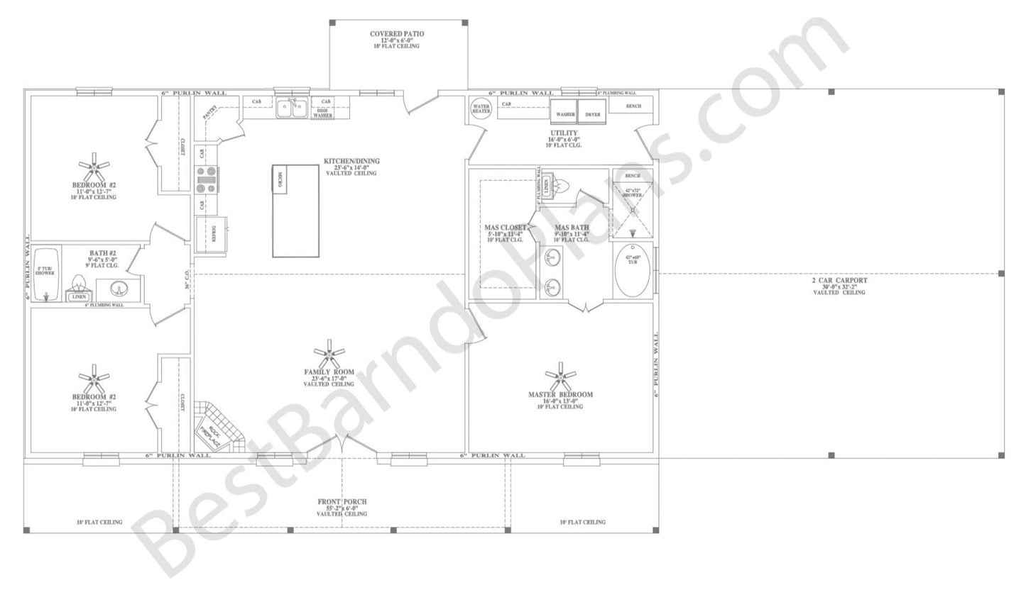
Discover the perfect blend of rustic charm and modern living with the Lonestar Landing Barndominium's 1760 sf of inviting living space, complemented by an over 900 sf carport. This thoughtfully designed floor plan offers a harmonious balance between indoor comfort and outdoor relaxation, ideal for those seeking a unique and welcoming home.
Upon purchase, you will receive a digital download of this full plan set in PDF format. Which includes: Floor Plan, Electrical Plan, Elevation Plan & Roof Plan
3 Bedroom
2 Bath
1760 SF Living
438 SF Porches
964 SF Carport
3162 SF Total (approx. 85'x45')
Click Here to watch a TOUR Video!
Share



